Двособен Стан 45,48 м2
Двособен Стан 45,48 м2
Двособен Стан 45,48 м2

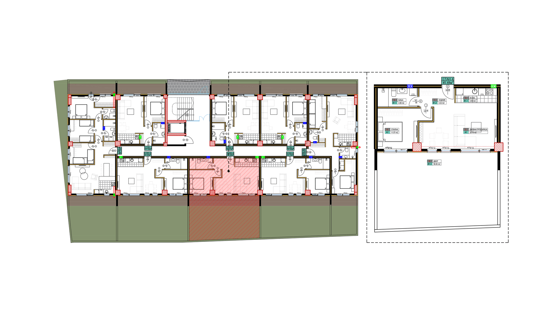
СТАН 4
Овој функционален стан од 45,48 m² со ориентација кон југ или југозапад нуди изобилство на природна светлина и топол, пријатен амбиент во текот на денот, со практичен распоред кој овозможува удобно и современо урбано живеење.
Детали
Детали
Детали
Квадратура
45,48 m2
Ориентација
Југ, Југозапад
Југ, Југозапад
Кат
Приземје
Соби
2




