Двособен Стан 54,49 м2
Двособен Стан 54,49 м2
Двособен Стан 54,49 м2


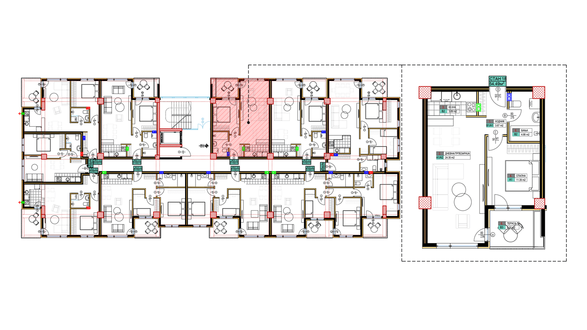
СТАН 18, 28, 38, 48, 58
Овој комфорен стан од 54,49 m² со североисточна ориентација нуди пријатна утринска светлина и добро организиран простор, создавајќи светол и функционален амбиент погоден за удобно и современо живеење.
Детали
Детали
Детали
Квадратура
54,49 m2
Ориентација
Североисток
Североисток
Кат
1, 2, 3, 4, 5
Соби
2






