Трособен Стан 61,87 м2
Трособен Стан 61,87 м2
Трособен Стан 61,87 м2


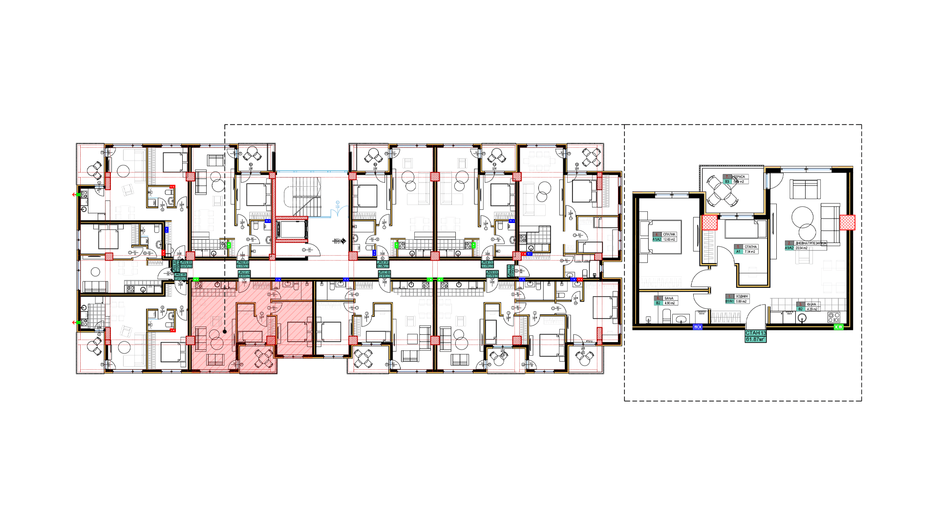
СТАН 13, 23, 33, 43, 53
Овој комфорен стан од 61,87 m² со југозападна ориентација нуди изобилство на природна светлина и пријатен, топол амбиент во текот на денот, со функционален распоред кој овозможува удобно и современо урбано живеење.
Детали
Детали
Детали
Квадратура
61,87 m2
Ориентација
Југозапад
Југозапад
Кат
1, 2, 3, 4, 5
Соби
3






