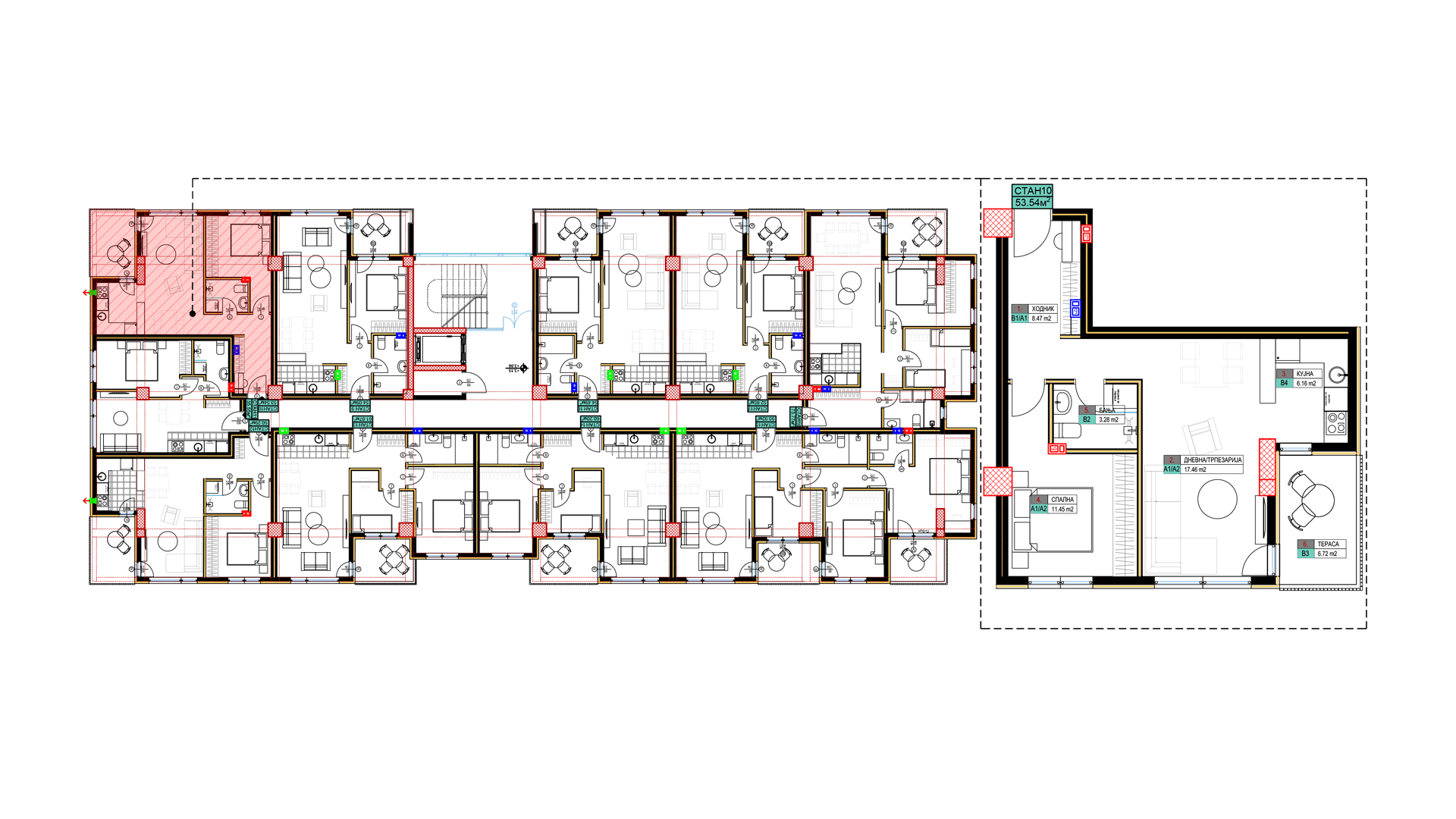
Двособен Стан 53,54 м2
Двособен Стан 53,54 м2
Двособен Стан 53,54 м2

СТАН 10, 20, 30, 40, 50
Овој функционален стан од 53,54 m² нуди удобен и практичен распоред, со можност за избор помеѓу североисточна ориентација со пријатна утринска светлина или северозападна ориентација со смирена попладневна атмосфера идеален за современо и комфорно живеење.
Детали
Детали
Детали
Квадратура
53,54 m2
Ориентација
Североисток, Северозапад
Североисток, Северозапад
Кат
1, 2, 3, 4, 5
Соби
2




